CHIC SPACES

Appartamento Farnesina

Roma
2021 - 2022

In una piccola traversa del quartiere Farnesina a Roma, abbiamo trasformato un appartamento in una “chicca” abitativa. Malgrado le dimensioni contenute, ogni angolo è stato pensato per offrire massima funzionalità e comfort. La cucina open space, sapientemente nascosta dalla libreria all’ingresso, si integra armoniosamente con il living, creando un ambiente fluido, accogliente e spazioso.

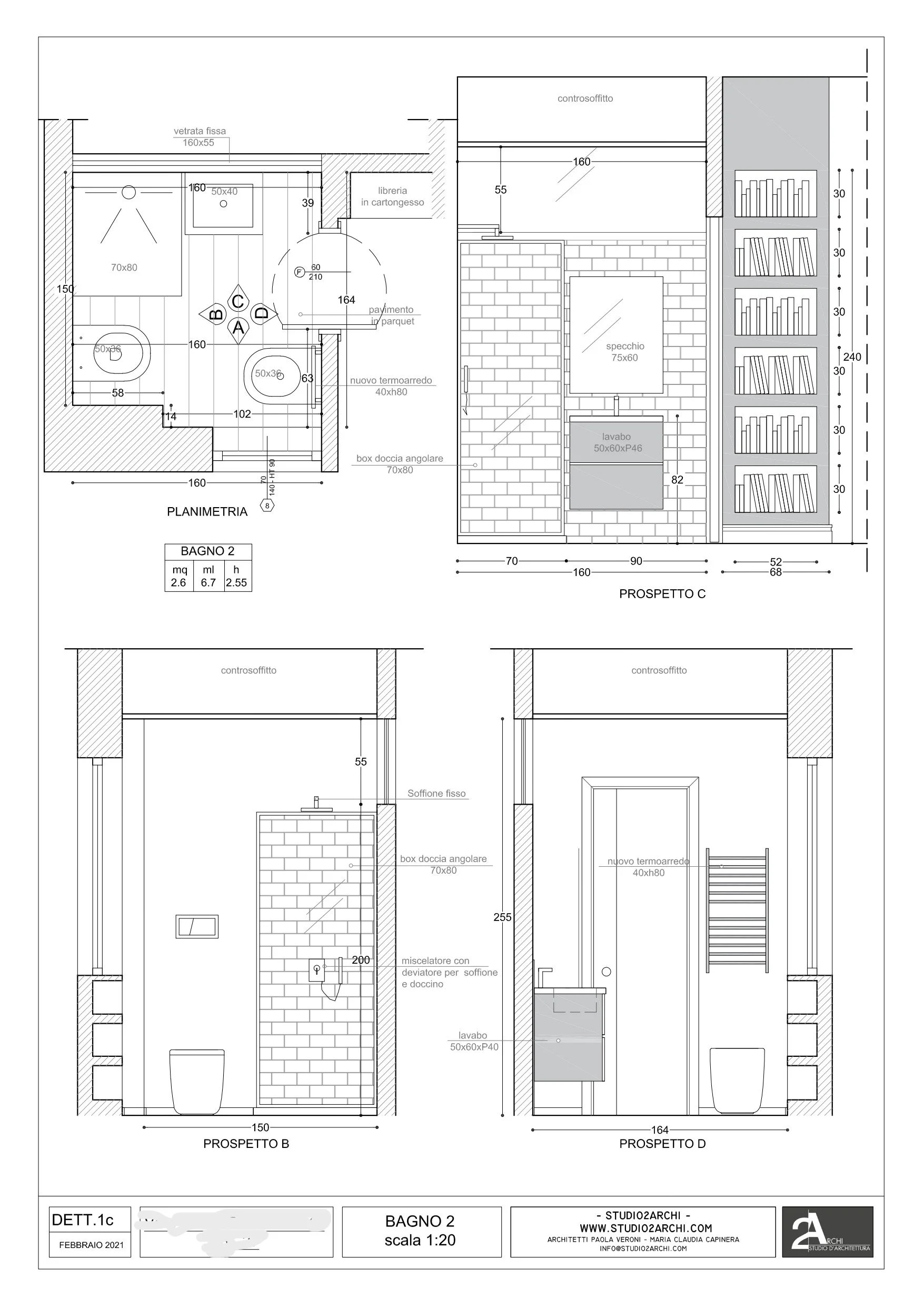
Particolare attenzione è stata dedicata al corridoio della zona notte dove, tramite un abile gioco “taglia e cuci”, abbiamo creato un secondo bagno modellando le murature attorno a elementi d’arredo industriali. Questo approccio ha trasformato il corridoio in un passaggio suggestivo.

Con poche mosse si può fare davvero tanto….Perchè la ristrutturazione non è solo una questione di estetica, ma un'opera d’arte abitativa, concepita per esaltare il carattere e la funzionalità di ogni spazio, creata per adattarsi ai sui ospiti proprio come un vestito di sartoria.

Indietro
Indietro

Monti

Avanti
Avanti

Camilluccia #1